Logo
Ekaggart Singh Kalsi

SHENYANG CLUBHOUSE

shenyang 1  1
shenyang 1  10
shenyang 1  11
shenyang 1  12
shenyang 1  13
shenyang 1  14
shenyang 1  15
shenyang 1  16
shenyang 1  17
shenyang 1  5
shenyang 1  6
shenyang 1  7
shenyang 1  8
shenyang 1  9
shenyang  2
shenyang  3
shenyang n 12
shenyang n 13
shenyang n 14
shenyang n 15

Description

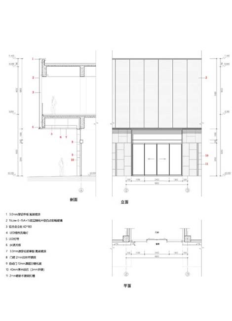
The Soufu club will serve as a gateway to the upcoming community of luxury housing in Senyang ( China ) .The main purpose of the club was to house a interior swimming pool , a gym and a few meeting rooms to relax. The complex consists of two buildings which contain a courtyard containing a shallow water pond. The small block on the south serves as a reception for the club and the block to the west houses the main functions.

My Role

My role in the project was the design development and detailing of the buildings.